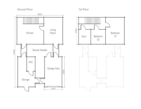
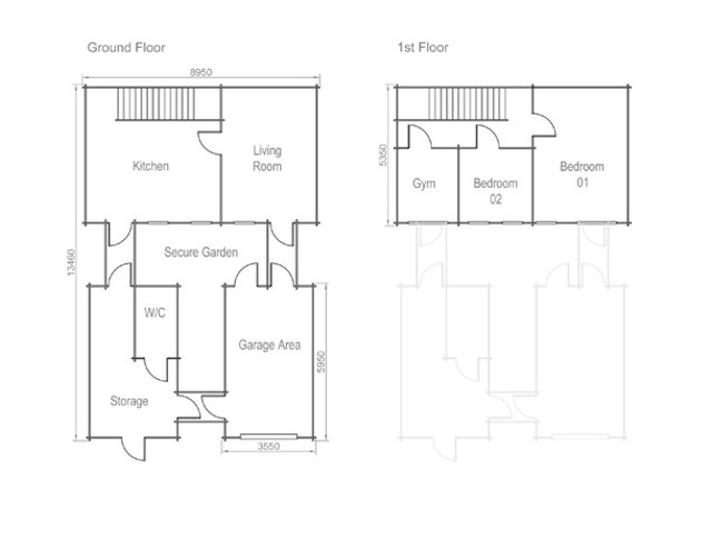
Esta es la cabaña «Tiger Log Cabin’s Zombie Fortification Cabin (ZFC-1)» y cuesta alrededor de £70,000 libras ($113,000 dólares).
La cabaña esta diseñada para tenerla en caso de un Apocalipsis Zombie.
Esta compuesta por tres secciones que son independientes una de otra.
[ Geekologie ]











